Die Modernisierung und Umstrukturierung der Ersten Deutschen Bäckerfachschule in Olpe leistet einen Beitrag zur Fachkräftesicherung.




































Es wurde sowohl durch die Europäische Union im Bereich Wettbewerbsfähigkeit unter Einsatz von Mitteln aus dem Europäischen Fonds für regionale Entwicklung (EFRE) 2014-2020 „Investition in Wachstum und Beschäftigung“ als auch durch die Bundesrepublik Deutschland, vertreten durch das Bundesministerium für Wirtschaft und Energie, aufgrund eines Beschlusses des Deutschen Bundestages gefördert.
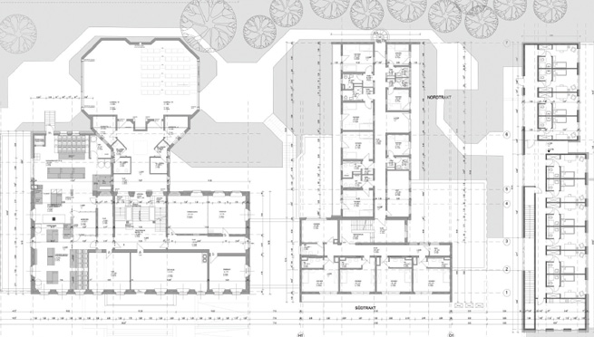
Veränderte Aus- und Fortbildungsbedarfe für gut ausgebildete Fachkräfte aufgrund veränderter Marktbedingungen machten die Modernisierung der Bäckerfachschule in Olpe notwendig. So trägt das Vorhaben dazu bei, die Wettbewerbsfähigkeit kleiner mittelständischer Unternehmen (KMU) im Bäckerhandwerk in Nordrhein-Westfalen zu steigern. Gegenstand der geplanten Maßnahme war die Modernisierung der Bäckereifachschule durch einen Aus- bzw. Umbau sowie einen Neubau im Bereich der Unterbringungszimmer. Daneben wurden Unterrichtsräume und Werkstätten, die bisher an verschiedenen Stellen im Gebäude untergebracht waren, zusammengezogen und neu geordnet. Darüber hinaus wurde die haustechnische Ausstattung unter Beachtung aktueller Brandschutzmaßnahmen angepasst.
Vorhaben
Das Bäckerhandwerk bildet als handwerklicher Wirtschaftsbereich zahlreiche Besonderheiten ab; denn die Bäckerei hat sämtliche Anforderungen der gesamten Wertschöpfungskette zu meistern:
• Produkt-/Dienstleistungsentwicklung,
• Ressourcenmanagement (Einkauf, Lagerhaltung),
• Produktion,
• Veredelung,
• Qualitätssicherung,
• Logistik (Filial-/Großkundenbelieferung),
• Marketing
• Verkauf (Großkundenverträge),
• Endkundenverkauf (teilweise inkl. Marktgeschäft, Liefergeschäft)
• Reklamationsbehandlung,
• Retourenmanagement
Umfeld
Gesellschaftliche Bedeutung
Dem Bereich „Lebensmittel“, dem Aspekt der Ernährungsqualität, besonders aber der Ökobilanz der Lebensmittelherstellung kommt eine hohe gesellschaftliche und politische Bedeutung auf regionaler, nationaler und internationaler Ebene zu (z.B. aktuelle Initiativen „Wertschätzung für Lebensmittel“ der Landesregierung und „Save Food“ der FAO (UN)).
Die Frage der Ernährungsqualität ist gerade vor dem Hintergrund der Migration und der Demografie wichtig. Es gilt, den politisch eingeschlagenen Weg zu mehr Wertschätzung für Lebensmittel zu unterstützen.
Gleichzeitig entsteht gerade in Betrieben des Bäckerhandwerks ein hoher Bedarf an Energie: Teigbereitung, Kühlung, Backen in der Produktion, die Belieferung der Filialen, das Filialbacken und -kühlen, die Ladenbeleuchtung usw. verlangen einen hohen Einsatz von Energie. Zum einen sind die steigenden Energiekosten betriebswirtschaftlich (gerade für kleine und mittlere Unternehmen) problematisch; zum anderen ist gesellschaftlich und politisch die Ausrichtung des Lebensmittelhandwerks auf Aspekte der Nachhaltigkeit ebenfalls unumgänglich.
Andererseits zwingt auch die Entwicklung im Bereich des Anbaus von Getreide zum Umdenken in Richtung möglichst regionaler Wertschöpfungsketten.
Marktanteil des Bäckerhandwerks
Umfassende Strukturveränderungen der letzten 15 Jahre im Marktumfeld (Ernährungsverhalten, Wettbewerb, Rohstoff- und Energiepreisentwicklung, zuletzt Einstieg in den Backwarenmarkt durch Discounter) verlangen von den Unternehmern neue Ansätze. Hierzu gehört die Entwicklung zielgruppen- und zeitgeistgerechter Angebote im Bereich Brot und Backwaren. Auch die Ausschöpfung des möglichen Zusatzgeschäfts wird für die Bäckerei als mittelständischer Handwerksbetrieb der Lebensmittelnahversorgung immer wichtiger. Hierzu gehört ein den jeweiligen Trend treffendes (bäckereikonformes) Snack- und Gastronomieangebot. Diese trendsetzenden Produkte und Dienstleistungen müssen vom Bäcker neben dem traditionellen Geschäft in seinem Umfeld gleichzeitig erfolgreich vermarktet werden.
Im Bereich der Aus-/Weiterbildung wird aktuell ein an der Wertschöpfungskette des Berufsbildes orientierter handlungs-/prozessorientierter Ansatz verfolgt. Hierbei wurden die Berufsbilder „Bäcker/in“ und „Fachverkäufer/in im Lebensmittelhandwerk“ bereits in den letzten Jahren aktualisiert und enthalten in den Rahmenlehrplänen und in den Prüfungsordnungen fachübergreifende Inhalte.
Strukturelle Bedeutung des Bäckerhandwerks
Gerade die kleinen und mittelgroßen Betriebe der ländlichen Regionen sind für NRW von zentraler struktureller Bedeutung. Die Beibehaltung der Filialen im ländlichen Raum, aber auch an problematischen Standorten der Ballungsgebiete, stellt sich betriebswirtschaftlich immer schwieriger dar. Deshalb gilt es, gerade die ländlich und dörflich angesiedelten Bäckereien, wie auch die Standorte in sozial problematischen Gebieten als selbstständige Unternehmen wirtschaftlich zu stärken; und zwar, um die regionale und ortsnahe Versorgung der (auch alternden) Bevölkerung mit gesunden und frischen Lebensmitteln und Lebensmitteldienstleistungen auf hohem Niveau zu sichern.
Planungen zur Begegnung dieser Herausforderungen
Aus diesen Gründen wird der Bäckerinnungs-Verband Westfalen-Lippe, seine Bildungsstätte „Erste Deutsche Bäckerfachschule“ als „Innovations- und Nachhaltigkeitszentrum Bäckerhandwerk 2025+“ weiter entwickeln.
Kern der Maßnahme ist der Ersatz der kleinen provisorischen Backstube durch eine „Modellbäckerei“ mit Ladenlokal und Theoriebereich, die den gesamten Wertschöpfungsprozess der Bäckerei (Management, Teigbereitung, Kühlung, Backen inkl. Ladenbacken, Veredelung, Snack, Gastronomie, Präsentation und Verkauf) unter erlebbaren Nachhaltigkeitsaspekten abbildet.
Gleichzeitig sollen die derzeit nicht mehr zeitgemäßen Räumlichkeiten für die Verwaltung, für das Internat und die hiermit verbundene Freizeitgestaltung den aktuellen Ansprüchen angepasst werden. Die Anforderungen des Brandschutzes sollen auf höchstmöglichem Niveau umgesetzt werden.
Antragsteller
Bäckerinnungs-Verband Westfalen-Lippe
Wir vertreten die Interessen von ca. 500 handwerklichen Bäckereien in NRW mit rund 4.500 Verkaufsstellen und insgesamt ca. 26.000 Beschäftigten. In diesen Betrieben werden ca. 2.100 junge Menschen laufend ausgebildet. Der Frauenanteil im Bäckerhandwerk beträgt ca. 65 % aller Beschäftigten, hiervon ca. 25 % in Teilzeit.
Der Verband ist Träger des Vereins „Erste Deutschen Bäckerfachschule e.V.“ (zertifiziert nach DIN 9001:2015) und Eigentümer des entsprechenden Schulgebäudes in Olpe. Ziel der bereits 1929 gegründeten Einrichtung (die ihre Bildungsmaßnahmen seit 1948 am Standort in Olpe betreibt) war und ist es, unter dem Leitbild „Lernen erleben“ das Bäckerhandwerk in NRW durch trendsetzende Angebote in Aus- und Weiterbildung wirtschaftlich zu stärken.
Der Präsident des Zentralverbandes des Deutschen Handwerks bezeichnete im November 2010 die Schule in Olpe als „eine der besten Schulen Deutschlands“.
Finanzierung
Die Erste Deutsche Bäckerfachschule in Olpe wurde mit Zuwendung des Landes Nordrhein-Westfalen unter Einsatz von Mitteln aus dem Europäischen Fonds für regionale Entwicklung (EFRE) 2014-2020 sowie Bundesmitteln modernisiert.
Bundesmittel | 3.690.900,00 € | 45% |
Landesmittel | 1.640.400,00 € | 20% |
Eigenbeteiligung | 2.870.700,00 € | 35% |
Gesamt | 8.202.000,00 € | 100% |



